家的简介:
绝了都!谁家沙发这么酷!屋主嫌弃常规沙发太普通?非得选双面沙发,还是黑色的,放在通透高级的大横厅空间,经典又大气,且双面沙发提供的开放式生活,让起居生活不止一面,不得不佩服屋主的审美,黑色沙发+白色硬装搭配,真的泰酷啦!
改造亮点:

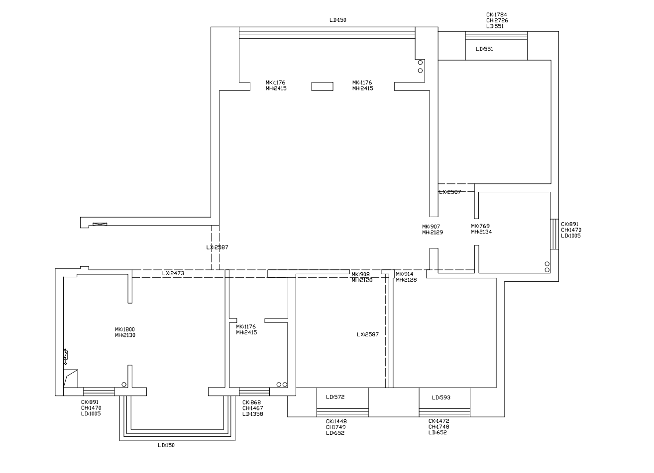
(原始户型图)

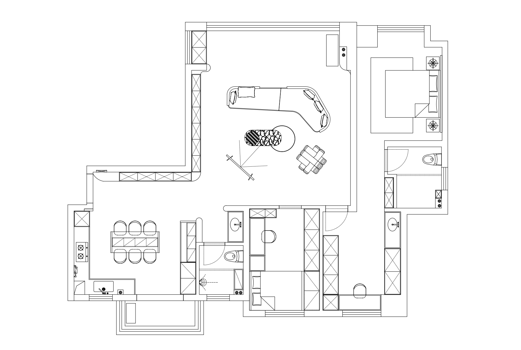
(平面布置图)
①、三房改两房,家因为需求来改变,入户就是餐厨一体的设计,景观阳台纳入客厅,让整个空间更加通透,客厅转角处都做了圆弧处理,不规则岩石沙发,搭配顶部超大圆形软膜灯,以及黑白主色调,都让整个空间充满了浓浓的设计感,卧室的门都是这种无框门,与墙面一种颜色,视觉上也更加统一。
②、原有的次卧与主卧打通,改为一个套间,扩大了主卧的使用空间,工作休息两不误,主卫洗漱台外置,这下洗澡上厕所时也不耽搁对象刷牙了,主卧床头做了简单的线条造型,一盏黑洞石吊灯就为卧室打造出了低调优雅的层次。
③、原本的客厅背景墙直接做成储物柜,电视则选用这种可移动的画境电视,更符合当代年轻人的生活习惯。
【客厅】





对于家的装修,Mr.Y主打一个“叛逆”,见到设计师张珈溥时,明确表示:不要大众化装修,要黑白灰风格!全屋唯一的色彩之处是Mr.Y购买的村上隆的太阳画。进门就被这款酷酷的模块沙发迷住了!双面沙发,打开空间与空间的隔阂,又代替了墙面的区域划分。正面坐着看电视,反面坐着看风景,还可以根据自己的心情随意组合摆放。
【餐厅】




原空间厨房和餐厅空间太窄,无玄关收纳,那就拆除厨房墙体,对过道餐厅,厨房进行空间整合,打造开放式餐厨空间,再加以灯带映照在大理石纹的板材上,颜值和实力all in !
【厨房】


从事水利工程工作的Mr.Y和爱人Mrs.Z,对生活的理解与追求在于——可以标新立异,但不能世俗平庸;没人规定家一定要是暖色调才是温馨,黑白灰也一样其乐融融。
【过道】





Mr.Y是一个非常有个性且对家有明确要求的人,不喜欢方方正正的墙,就选择用圆弧做过度;白墙上今后搭配什么软装饰品,就由后期Mr.Y和Mrs.Z入住的心境和喜好决定了。
【主卧】





Mr.Y和Mrs.Z的主卧延续黑白灰风格,且我们大胆选择了黑色窗帘搭配,将反叛治愈美学进行到底!两人居,不需要太多房间,且Mrs.Z喜欢买冬天的外套以及包包和鞋子,需要大容量收纳,因此将主卧与邻近的次卧打通做成了多功能套房使用。
【次卧】


暖白色柜门打破纯黑的沉闷,与灯带相互平衡,吊灯和台灯组成多点照明,睡眠和学习氛围格外浓郁。
【客厅】【玄关】【卧室】
设计师:周梦梅
潮流设计
已有4111人浏览
设计师:
潮流设计
已有6399人浏览
设计师:
潮流设计
已有6300人浏览
设计师:肖 诚
潮流设计
已有6426人浏览
设计师:
已有5806人浏览
【家的简介】多数人装修前会直接pass掉深色,尤其是小户型。因为在小空间中使用深色调会产生压抑的感觉...
设计师:杜雅兰
潮流设计
已有4645人浏览
【客厅】【玄关】【卧室】
设计师:周梦梅
潮流设计
已有4111人浏览
设计师:
潮流设计
已有6399人浏览
设计师:
潮流设计
已有6300人浏览
设计师:肖 诚
潮流设计
已有6426人浏览
设计师:肖 诚
潮流设计
已有5638人浏览
【家的简介】多数人装修前会直接pass掉深色,尤其是小户型。因为在小空间中使用深色调会产生压抑的感觉...
设计师:杜雅兰
潮流设计
已有4645人浏览
贵公网安备 52010202002684号
友情链接: